Listing # 73319326

Description

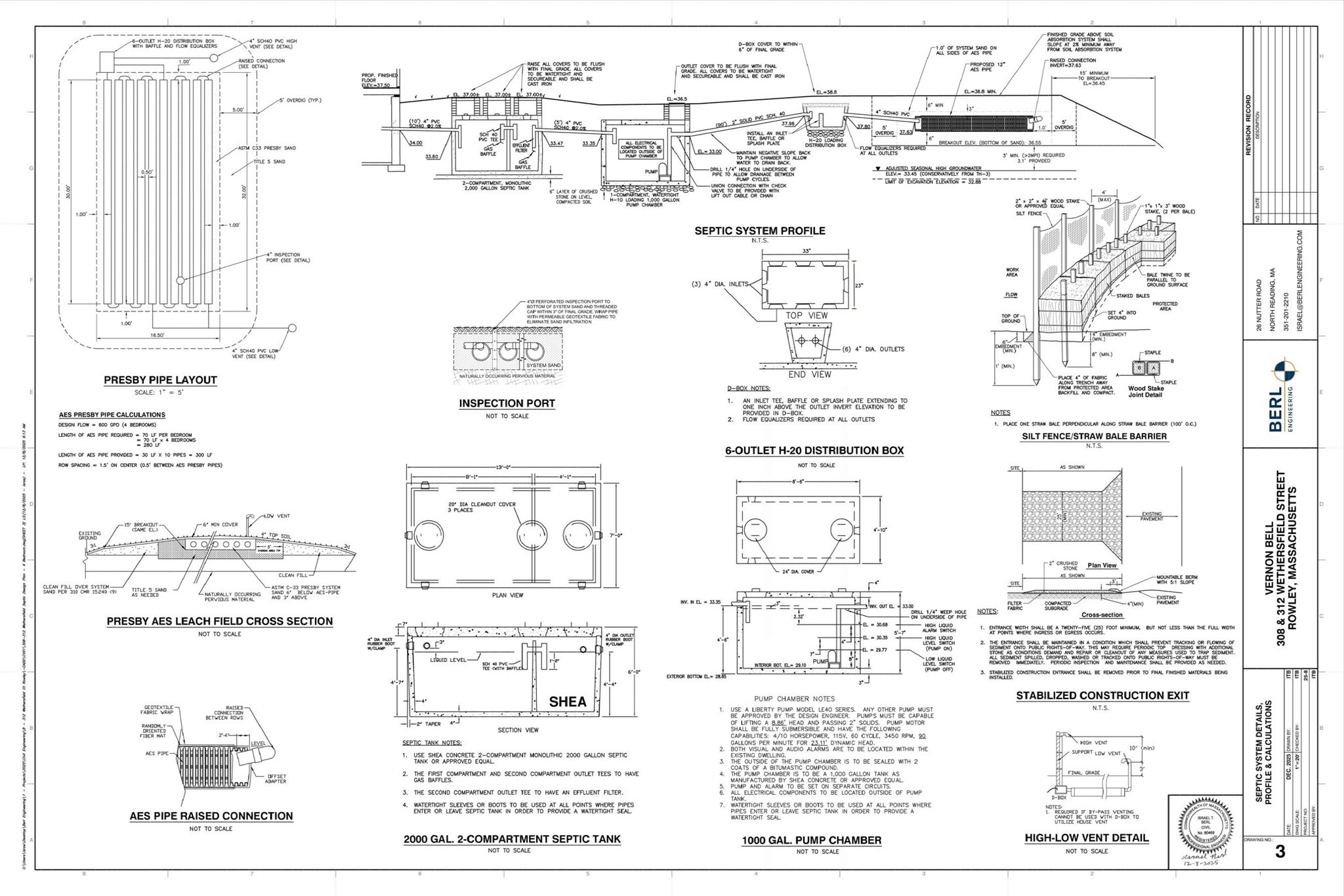
Perk Test were completed 9.24.2025, ** Septic Plan for 4 Bedroom awaiting approval. ** See Design in Photos ** 4 Separate lots consisting of 304 Wethersfield St (.94acre), 308 Wethersfield St (.93acre), 312 Wethersfield St (.93acre) & 480 Newburyport Turnpike (.94acre). Rare Opportunity to own a continuous 3.74 acres bordering both Newburyport Turnpike and Wethersfield St. Rowley, MA. Outlying District allowing for Low Density Residence, Recreation, Conservation, Agriculture and similar uses compatible with a Rural Area.

Property Details
For Sale

$575,000

  • County: Essex
  • Sq. Ft:
Amenities
  • Public Transportation
  • Shopping
  • Highway Access
  • Private School
  • Public School
  • T-Station
Documents On File
  • Perc Test
  • Septic Design
  • Land Survey
Land Desc
  • Level
  • Wetlands
  • Wooded
  • Corner
Road Type
  • Public
  • Paved
  • Publicly Maint.
Additional Information
  • Electric Feature: At Street
  • Gas: Other (See Remarks)
  • Home Own Association: No
  • Ld Type: Residential
  • Perc Test: Yes
  • Reqd Own Association: Unknown
  • Sewer: Private
  • Water: Other (See Remarks)

Location

Seller's Representative:
The North Shore Realty Group
eXp Realty

© 2025 MLS Property Information Network, Inc.. All rights reserved.

The property listing data and information set forth herein were provided to MLS Property Information Network, Inc. from third party sources, including sellers, lessors and public records, and were compiled by MLS Property Information Network, Inc. The property listing data and information are for the personal, non commercial use of consumers having a good faith interest in purchasing or leasing listed properties of the type displayed to them and may not be used for any purpose other than to identify prospective properties which such consumers may have a good faith interest in purchasing or leasing. MLS Property Information Network, Inc. and its subscribers disclaim any and all representations and warranties as to the accuracy of the property listing data and information set forth herein.

MLS PIN data last updated at April 28th, 2022 10:36:53 AM EDT